Ref: 1888(4)   

Exclusivos adosados en venta en Churriana. Piscina comunitaria y 2 plazas de parking
Chalet en venta en Pizarrillo (Málaga), 443.000 €

Descripción



TRESOL inmobiliaria comercializa, una exclusiva promoción cerrada que contará con tan solo 37 viviendas adosadas de diseño de 3 y 4 dormitorios, con jardines privados, piscina comunitaria y 2 plazas de aparcamiento privado.

Las viviendas están diseñadas con una arquitectura moderna e innovadora y bajo los estándares de calidad de la marca Smart Living. Los interiores de la vivienda están optimizados aprovechando al máximo los espacios bañados por luz natural y confort para toda la familia.

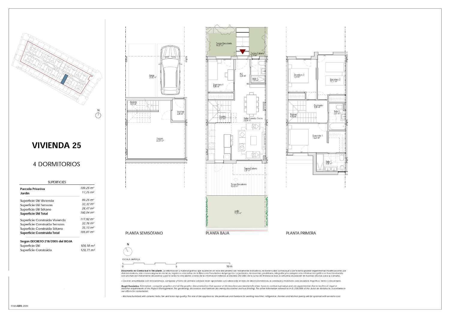
Chalet adosado de 4 dormitorios:
EXTERIORES: En la entrada zona privada de terraza cubierta de 1,25 m y descubierta de 14,27m y en la parte trasera con salida desde el salón terraza cubierta de 3,37m y descubierta de 13,43m con un jardín 17,25m

PLANTA BAJA: Salón-comedor-cocina, 1 dormitorio, 1 baño con plato de ducha y terraza
Un gran y luminoso salón-comedor con cocina integrada de 29m2 aprox, nos asoma al exterior de la vivienda por grandes puertas de cristal correderas, prolongando el salón a la terraza y al jardín.

PLANTA ALTA: 3 dormitorios y 2 baños
El dormitorio principal de 13,23m2 con vestidor y baño en suite. Y los otros dos dormitorios con armarios empotrados que comparten un elegante baño con bañera.

SOTANO: 35,13m2 un espacio perfecto para adaptarlo a las necesidades de la familia. Accediéndose a él desde la vivienda o desde la zona de aparcamiento con espacio para dos vehículos. Se entrega sin acabar con la opción te entregarlo terminado bajo presupuesto.

CALIDADES:
- Carpintería exterior: Puertas y ventanas de aluminio o pvc con rotura de puente térmico para mejorar el aislamiento.
- Cocina opcional bajo presupuesto.
- Carpintería interior: Puertas interiores de madera con diseño moderno y actual, incluyendo burletes de goma perimetrales para mejorar la estanqueidad y sistema de ventilación. Puerta de entrada de seguridad. Armarios y vestidor forrados con barra metálica para colgar y cajonera de 60 cm.
- Preinstalación de aire acondicionado frío-calor por conductos de fibra tipo Climaver y rejillas de impulsión y retorno lacadas en blanco.
- Tarima flotante colocado sobre lámina de alto impacto excepto en baños y trastero de sótano con material porcelánico. En terrazas y porches con material porcelánico antideslizante.
- Aparatos sanitarios de porcelana vitrificada color blanco con plato de ducha de resina. Baño del dormitorio principal con doble lavabo encastrado con mueble y cajonera.
- Sistema individual de producción de ACS mediante sistema de placas solares y apoyo mediante termo eléctrico


Destacar su excelente ubicación a pocos minutos de todo tipo de servicios y que ofrece extraordinarias comunicaciones y distancias a los puntos de interés, a tan solo 15 minutos Málaga capital de la playa, el aeropuerto, centro comercial Plaza Mayor, Torremolinos y Parque Tecnológico.

Adosado de 3 dormitorios + Torreon desde 450.500€ + 10% de IVA
Adosado de 4 dormitorios desde 443.000€ + 10% de IVA
Adosado de 4 dormitorios + Torreon desde 503.000€ + 10% de IVA
ENTREGA 2º SEMESTRE DE 2027

Para más información, no dude ponerse en contacto con nosotros, estaremos encantados de atenderle. REF: 1888. Tfno: 952 410 333. WhatsApp y Tfno móvil: 662 922 851

NOTAS: NO existen gastos de intermediación adicionales al precio de venta.
Las imágenes contenidas solamente tienen carácter orientativo, por tal motivo son susceptibles de modificación por motivos técnicos, jurídicos o de cualquier otra índole. El amueblamiento reflejado tiene únicamente efecto decorativo y no constituye documento contractual. Igualmente, el equipamiento de las viviendas será el indicado en la correspondiente memoria de calidades.
Los datos expuestos son meramente informativos y no tienen valor contractual, la oferta queda sujeta a errores, cambios de precio, disponibilidad y/o retirada del mercado sin previo aviso.


Características

Generales
  • Adosado
  • 3 Plantas
  • 1 Salón
  • 4 Dormitorios
  • 3 Baños
  • 3 Terrazas
  • Trastero
  • Garaje independiente

Superficies
  • Parcela: 109 m2
  • Constr.: 186 m2

Estado
  • En construcción

Equipamiento
  • Piscina
  • Jardines
  • Cocina americana
  • Aire Acondicionado / Preinstalación
  • Teléfono
  • Wifi

Servicios
  • Agua
  • Luz


Precio

443.000 €

  • m2 constr.: 2.382 €
  • m2 parcela: 4.064 €

Certificado energético

CALIFICACIÓN ENERGÉTICA

Consumo energía
kW h / m2 año
Emisiones CO2
kg CO2 / m2 año
A
B
C
D
E
F
G
EN TRÁMITE EN TRÁMITE

Situación y Entorno

Málaga
Pizarrillo | Churriana

Situación
  • Exterior
   Llamar

Uso de cookies

Utilizamos cookies propias y de terceros para mejorar la experiencia en nuestra web y con fines analíticos. Algunas son necesarias para el correcto funcionamiento de la web, otras podrás configurarlas o rechazarlas. Puedes ver más información en la página de Política de cookies